Cómo hacer una carpeta de tela





Las carpetas tienen un protagonismo muy especial cuando se vuelve al colegio, las clases de idiomas o cualquier actividad que estemos retomando estos días.

Os propongo que en lugar de ir por ella a la papelería, la hagáis de tela.

Veréis como no es difícil y sin duda no será una carpeta más.

Esta es la versión que he hecho, con una bonita combinación de telas de Gütermann, que podéis encontrar en Pontejos.
Los detalles como los vivos en los laterales, el lazo de terciopelo con el botón o la borla para la cremallera, son variaciones que se me han ido ocurriendo mientras la hacía.

Seguro que a vosotr@s se os ocurren muchas ideas propias para customizarla.



Y este es el interior de la carpeta con 2 bolsillos con cremallera:



Como puedes ver los bolsillos están colocados, uno a 4 cm del lateral y el otro en el propio lateral. He combinado las telas, para que destacara más el bolsillo con la cremallera.



Si te ha gustado, aquí comienza el tutorial:

Materiales que necesitamos:

Apunte importante:
La cantidad de tela dependerá del estampado de la tela y del pie que pueda tener. Esto es algo que tenemos que pensar previamente antes de cortar, según el estampado que tengamos y cómo lo queramos orientar, no puede cambiar la cantidad de metraje. En este caso os oriento según la forma en la que utilicé la tela para hacerla, ya que la hice siguiendo la dirección del hilo. Si la tela nos lo permite, podemos hacerla a contrahilo y aprovecharla mejor.

Tela exterior:
- Sin pie y sin combinar, Plano de Corte A: 40 x 150 cm (o el ancho de la tela)

- Con pie sin combinar, Plano de Corte B: 35 x 150 cm (o el ancho de la tela)

- Con pie y combinada, Plano de Corte C: 35 x 150 cm (o el ancho de la tela) y 35 x 150 cm tela interior

Forro (todas opciones): 40 x 150 cm· - 2 cremalleras de 35 cm

· - 3 snaps

· Guata:(se aconseja utilizarla tipo fieltro): 45 cm x 150 (o el ancho de la tela)
Podéis ver los planos de corte de la carpeta, así dependiendo de la combinación de telas que queráis hacer, podéis elegir una de las opciones, la A, la B o la C



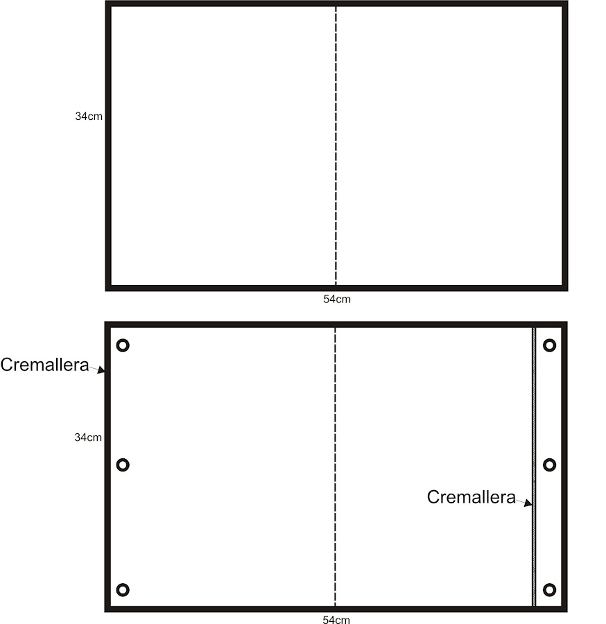
1. Aquí os presento cómo es la carpeta con dibujo técnico y con las medidas que va a tener una vez terminada.



1º Dibujo exterior: El diseño es sencillo, está pensado para que podáis lucir una bonita tela en la parte que más se ve.

2º Dibujo interior: También sencillo, aunque la diferencia está en un bolsillo con cremallera y 3 snaps en los laterales que sirven para abrirla y cerrarla.

¡Como podéis ver, está pensada para que sea sencilla y práctica!



1. CORTE:

Exterior de la carpeta:

Cortamos un rectángulo de 38 x 56 cm (pieza 1)

En tejido exterior, forro y en guata.



Piezas interiores:

Cortamos 2 rectángulos:

- 1º de 35 x 49 cm

(pieza 2)

- 2º de 10 x 35 cm

(pieza 3)

En tejido exterior y en forro.

Estas serían las piezas interiores (piezas 2 y 3).



Como veis, son piezas iguales a las exteriores, pero teniendo en cuenta el bolsillo superior, que es la única diferencia y que se hace igual en el forro que en el exterior.






* Colocar vivo es algo opcional, pero que puede dar un toque muy terminado a nuestra carpeta.

Os recomiendo colocarlo. Especialmente sirealizáis la carpeta con una combinación de tejidos como ha sido mi caso.

Además, como la tela elegida tiene pie, ha sido necesario que a la mitad de la carpeta, haya un corte de la tela y que se case bien ésta para que al doblarla la veamos en las dos direcciones.

Para cortarlo nos podemos ayudar de un cutter y una alfombrilla de corte.

CONFECCIÓN:

1.Empezamos a coser haciendo el bolsillo interior.

Para ello colocaremos la cremallera entre los dos rectángulos que forman la parte interior de la carpeta.



2. Así,colocamos la cremallera con alfileres en el rectángulo grande interior pieza interior de la carpeta (en el lado superior).



3. Después hacemos lo mismo con el pequeño rectángulo pieza superior.

Así dejamos preparada la cremallera para coserla.





4. Cosemos la cremallera con un pespunte exterior, que la sujetará y nos la dejará bien sujeta para que no pille el forro al abrir o cerrar.

* Consejo:Nos podemos ayudar de un prensatelas de una sola patilla, como el que aparece en la foto.





5. Ahora vamos a poner la otra cremallera en la carpeta. Se coloca en el otro extremo y nos permitirá abrir el bolsillo correspondiente justo por el lomo de la carpeta.





6. Después colocaremos ya la parte exterior, en esta parte exterior, estará incluida la tela exterior y también la guata. Lo haremos a la vez.


7. Si hemos decidido colocar un vivo entre la parte exterior y la interior, lo podemos hacer de 2 formas diferentes:

· Por separado sobre la parte exterior ya con la guata colocada, como se ve en la foto.

· A la vez que se unen la parte exterior de la carpeta con la interior.

En los dos casos se recomienda hilvanar previamente.



8. Unimos los laterales de la carpeta exterior ya con la guata.



9. Cosemos los laterales, por donde hemos colocado los alfileres.



10. Ya tenemos cosidos los laterales de la carpeta.

Ahora podemos recortar las costuras y dejarlas a 0’5 cm, daremos la vuelta a la carpeta y la plancharemos.



11. Vamos preparando el forro.

Coseremos la pieza 3 a la 1 por la parte superior.



Y una vez que se ha cosido la parte superior, uniremos la pieza 2 y la pondremos sobre la parte del forro cosida, con alfileres.



12. Cuando cosamos los laterales, en la zona donde irá el bolsillo interior de la cremallera, doblaremos cada lado del forro al que corresponde colocarla, iremos doblando 0’5 cm hacia adentro, para que esa zona quede preparada para unirse a la carpeta.



* Ahora que tenemos el forro sin unir podemos aprovechar para colocar nuestra etiqueta.

13. Y ya tenemos el forro preparado. Por el lado derecho, debe habernos quedado en el sentido en el se ve en la foto.



14. Ahora daremos la vuelta al forro y lo introduciremos en la carpeta exterior que ya tenemos terminada.



Importante: La parte interior de la carpeta irá junto a la parte interior del forro.

Así cuando abramos la carpeta, una vez terminada, encontraremos el derecho del forro.

15. Ahora iremos cosiendo con puntadas a mano, el forro sobre la carpeta.

Consejo: Debemos dejar un espacio, entre el final del forro y la cremallera, de unos 8 mm. Así evitaremos que la cremallera pueda engancharse con el uso.





16. Coseremos un pespunte por el exterior de la carpeta que la divida en dos. Éste permitirá que los dos compartimentos sean independientes y será por donde se doble.





17.Vamos colocando los snaps, lo haremos según el dibujo técnico del paso 1 y siempre en el lado interior. De este modo evitaremos que se vean por el exterior de la carpeta y que dividan sus bolsillos.




¡Y ya está terminada!



Espero que os haya gustado, nos vemos pronto con un nuevo tutorial

Si te ha gustado, sígueme y no te pierdas nada en:



Fuente: este post proviene de coloursforbaby, donde puedes consultar el contenido original.
¿Vulnera este post tus derechos? Pincha aquí.
Creado:
¿Qué te ha parecido esta idea?

Esta idea proviene de:

Y estas son sus últimas ideas publicadas:

Aunque las navidades hayan quedado atrás, estos días estoy compartiendo algunas cosas que he cosido durante esos días. Así las comparto contigo y a la vez quedan registradas en el blog. En este caso c ...

Me encantan los tutoriales de costura, por eso de vez en cuando por aquí tendréis alguno ¿Te animas a hacer conmigo un ojal acordonado? Es fácil, más de lo que parece y tú puedes hacerlo, ya lo creo ...

Recomendamos

Relacionado

costura otoño/invierno retos ...

¿Os animáis a hacer una carpeta de tela? Os la enseñé hace apenas unos días, se trata de una manera muy sencilla de llevar cuadernos, libros, móvil, estuche y llaves sin necesidad de cargar con un bolso. Ideal si habéis vuelto a las clases o conocéis a alguien que esté en ello y además es completamente lavable... Materiales Lona, medio metro Guata, medio metro Forro, medio metro 2 Cremalleras de 4 ...

bolso de tela con cremallera bolso de tela tutorial bolso paso a paso ...

Hola hola! Me alegra un montón tener que compartir esta noticia con todos vosotros y es que ya somos más de 10 mil suscriptores en el canal de Youtube . Por esa razón hemos sorteado una cosmetiquera hecha a mano y con todo el cariño del mundo y ahora mismo va camino a Brasil. Ahora si, os quiero enseñar lo que vamos a hacer esta semana: ¿Quieres aprender a hacerlo? en el Vídeo tutorial t ...

regalo bolso de tela con cremallera bolso de tela tutorial ...

Hola a todos! Esta semana vamos a hacer un bolso sencillo, a dos colores: usando tela estampada y unicolor; lleva forro y bolsillo interior con cremallera y como se acerca el día de las madres es perfecto para regalar. Espero que te guste. Vamos a necesitar: Telas: para el exterior y el forro Dos cremalleras: una de 42 cm para el bolso y otra de 15 cm para el bolsillo interior (las mías las he ...

Diy bolso con cremallera Costura ...

Este bolso con cremallera o Tote bag es otra de las piezas que he hecho durante el confinamiento. Me hacía falta un bolso así para llevar todas las cosas del trabajo así que manos a la obra.Me está costando bastante volver al ritmo de publicaciones que tenía antes de todo esto, así que irán saliendo las cosas algo más despacio de lo habitual hasta que consigamos recuperar la normalidad.Para este b ...

costura curso gratis costura tutorial

Hola a tod@s! Hoy en el Curso de Costura Gratis vengo con un proyecto muy práctico. Nos puede servir para regalar o para nosotras mismas. Se trata de un organizador de bolsos. Viene genial para que cambiar de bolsos no sea algo que nos de pereza o la fuente de problemas, por dejarnos en cada bolso cosas olvidadas. Además contribuimos a conservar el forro de nuestros bolsos. Por todo esto, es una ...

bolso carmen bolso de polipiel bolso diy ...

Cuando tengo un bolso en la cabeza siempre hago una primera prueba antes de grabar un tutorial. Me gusta experimentar con las medidas, la forma de cada pieza, buscar el tamaño más adecuado... Después, me paso un tiempo usándolo para ver si, de verdad, me gusta. No es lo mismo que te entre por el ojo que comprobar que realmente te resulta cómodo y, sobre todo, práctico. Con este modelo creo que he ...

bolso bolso diy costura ...

¡Hola! ¿Como estáis? La semana pasada publiqué el post del Porta documentos y como he prometido aquí esta el "tuto" del bolso que hice con la misma tela. La tela utilizada para hacer este bolso es un tweed, fue un retal que compré en el mercado de los Encants, aquí en Barcelona. Las asas están hechas de un cinturón que tenía por casa. Por dentro hice un bolsillo sencillo, sin cremallera ...

blogs de costura cosmetiquera costura creativa ...

En este blog ya has visto antes tutoriales para confeccionar neceseres con bolsillos interiores pero esta semana en Instagram he compartido un vídeo con neceseres de corcho y, ante la avalancha de peticiones, he decidido publicar este post. Hoy comparto contigo unos neceseres de corcho y tela con bolsillos interiores insertados que voy a usar como regalo de Navidad de una amiga que aprecia las cos ...

carpeta forrada creativa customizar ...

P { margin-bottom: 0.21cmMe gustan más las carpetas con anillas que las agendas porque puedo ir cambiando las hojas en el orden que quiero. También me gusta la variedad y para no estar comprando una nueva cada año vuelvo a forrar la misma carpeta para que se quede como nueva. Esta de la foto ya tiene unos cuatro años. Así que este año os enseño como lo hice, a ver si alguien se anima... Utilicé tr ...

Manualidades con tela Confección de estuche Estuche ...

Vamos a ver el paso a paso para realizar un estuche de tela de una manera fácil y que nos resulte sencillo para confeccionarlo nosotros mismos. Este estuche nos puede ser útil para llevar los colores y bolígrafos bien guardados al cole. Materiales: Estos son los materiales que necesitaremos para confeccionar nuestro estuche: Tela exterior: Una bonita tela con los colores y estampados que más nos g ...