Chaqueta Formal con Forro hm1318s



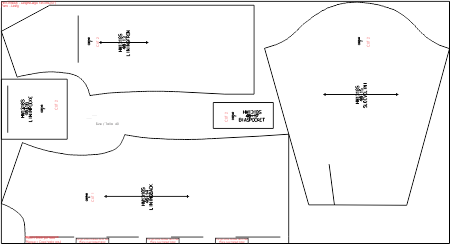
Moldes Chaqueta Formal con forro
Moldes de Chaqueta Formal con forro

para jóvenes y adultos

Chaqueta formal con forro, con canesú al frente y manga larga de dos piezas con puños.  El frente lleva botonadura en el centro para ocho botones, cortes verticales a cada lado con bolsillos de parche con tapas a los lados. La espalda tiene canesú y lleva costura en el centro espalda.

Sugerencia: Si se piensa confeccionar esta prenda para invierno, los moldes del forro pueden ser cortados en telas gruesas tipo imitación borrega, Fleece y telas acolchadas de protección del frío.

.

Recomendaciones Antes del Corte: una vez que tenga su Trazo sobre la mesa, antes de cortar, obsérvelo bien analizando cada molde y los textos de referencia en las piezas con sus indicaciones y recomendaciones.  Observe que el trazo incluye los moldes de las telas de los forros de los bolsillos, los cuales debe ‘sacar’ y cortarlos por aparte en la tela de poketín o forro para bolsillos.  Al hacerlo, para ahorrar tela principal, le sugerimos que reacomode las piezas chicas y así obtendrá un mejor rendimiento de su tela.

.

TELAS SUGERIDAS: La chaqueta formal con forro está diseñada para telas medianas  y semi pesadas de tejidos firmes. Sugerimos: mezclillas, linos, driles, microfibras, gabardinas, vinilos o imitación piel (cuero) o real.

.

OTROS MATERIALES: Hilos, entretela, tela para forro, 8 botones y dos hombreras medianas o grandes.

Imagen de los moldes de la Chaqueta Casual con

forro disponible en 12 tallas trazadas individuales

“Listas para Cortar”

 Chaqueta-Formal-con-forro-hm1318s.png septiembre 4, 2015 174 kB 650 × 502 Editar imagen Borrar permanentemente URL http://www.modafacil.com/wp-content/uploads/2015/09/Chaqueta-Formal-con-forro-hm1318s.png Título Chaqueta Formal con forro hm1318s Leyenda Texto alternativo Moldes Chaqueta Formal con forro Descripción Descarga Gratis los Moldes de Moldes de Chaqueta Formal con forro disponible en 12 Tallas trazadas Individuales Listas para Cortar AJUSTES DE VISUALIZACIÓN DE ADJUNTOS Alineación Enlazado a http://www.modafacil.com/wp-content/uploads/2015/09/Chaqueta-Formal-con-forro-hm1318s.png Tamaño Instrucciones-de-Costura-de-Moldes-de-Chaqueta-Casual-con-Forro-hm1317s.pdf Instrucciones-de-Costura-de-Saco-y-Pantalon-Casual-para-Jovenes-y-Adultos-hm1307sp.pdf Instructivo-de-Costura-de-los-Moldes-de-Blusa-Materna-mj1144b.pdf Instrucciones-de-Costura-de-los-Moldes-de-Overall-o-Enterizo-Materno-mj1136e.pdf Instructivo-de-Costura-de-los-Moldes-de-Vestido-de-Maternidad-mj1126v.pdf Talla-08-Patrones-de-Blusa-de-Uniforme-de-Trabajo-MJ1905b.pdf Talla-06-Patrones-de-Blusa-de-Uniforme-de-Trabajo-MJ1905b.pdf Instructivo-de-Costura-del-Pantlon-de-Uniforme-de-Trabajo-MJj1905p.pdf 1 seleccionados Borrar Insertar en la entrada Elegir archivos


Imagen de los moldes del Forro

Trazo Forro Chaqueta Formal con forro hm1318s


INSTRUCCIONES DE COSTURA

 

Todos los moldes tienen su margen de costura de 1.3 cm.

1-   Haga Zigzag u over a los bordes de las piezas. (Si no descargo el Forro).

Adicione fusionados y entretelas.

2-   Prepare / cosa los bies de los bolsillos, cosa las vistas al forro del bolsillo.

3-   Prepare / cosa las piezas del cuello.

4-   Prepare / cosa las mangas y sobre el borde de la copa de la manga haga una costura floja para embeber un poco la copa igualándola con la sisa.

5-   Una / cosa las piezas de la espalda por el centro.

6-   Una / cosa las piezas de los costados a su respectiva pieza.

7-   Cosa los bolsillos a cada frente.

8-   Una / cosa los falsos de la solapa a cada frente.

9-   Una / cosa por hombros el falso de la espalda a los falsos de la solapa.

10- Una / cosa por hombros las piezas del frente y la espalda.

11- Cosa el cuello al escote cuidando de cazar perfectamente las puntas de la solapa y asentando los falsos.

12- Cierre / cosa los costados.

13- Una / cosa cada manga a su respectiva sisa.

14- Si descargo los patrones del forro, cósalos independientemente y luego los une al saco.

15- Coser dobladillos uniendo el forro al largo y a las mangas.

16- Haga ojales y cosa botones.

17- Haga puntadas finales y Planchar.

Muy Importante: Haga clic en el enlace y Descarga el PDF con las Instrucciones de Costura de Chaqueta Formal con forro hm1318s

.

RECOMENDACIÓN PARA ESCOGER LA TALLA IDEAL

Puedes descargar todos los patrones gratis que tu quieras, talla a talla, para tu negocio personal, pero antes debes reconocer las Medidas que corresponden a cada Talla y así tener certidumbre que las tallas que descargues sean las correctas. Estudia el siguiente cuadro o descarga el PDF con esta valiosa información.

Cuadro de Medidas y Tallas de Hombre Modafacil DIY


Para facilitarte este proceso, debes descargar el Manual haciendo clic en: Instructivo de las Medidas y Tallas de los Patrones Modafacil DIY

.
.

HAZ CLIC AQUÍ PARA DESCARGAR LAS TALLAS DESEADAS

PARA IMPRIMIR EN CASA

____________________________________________________________

Si deseas Descargar otro tipo de Patrones, Visita la Sección de: 

PATRONES GRATIS

(clic para Entrar)

.

____________________________________________________________

¿QUIERES LOS ARCHIVOS DE LOS PATRONES

PARA LA PRODUCCIÓN INDUSTRIAL?

Si quieres los archivos en formato DWG o DXF o PLT para manipular los patrones en un sistema CAD, o imprimirlos en tu propio Plotter, los puedes ordenar a razón de USD $3 dólares cada Talla individual; si deseas una orden de 5 tallas el precio es de USD $10 dls y para las serie de las 11 o 13 o 15 Tallas, si las hay, el precio es de USD $18 dls. para la serie completa. Si te interesa, escríbenos a través de la sección Contacto.

.

¿QUIERES RECIBIR EL PATRÓN IMPRESO

ENTREGADO A DOMICILIO?

Si deseas recibir este patrón impreso en una sola gran hoja a tamaño real, en la Talla solicitada, en la comodidad de tu hogar, escríbenos indicando tu país y tu ciudad y con gusto lo imprimiremos por Plotter en tu propio país y te lo haremos llegar por mensajería expresa a la puerta de tu casa o negocio.

Nos interesa conocer tu opinión, pues es un servicio opcional, adicional a la descarga de patrones gratis para imprimir en casa. NOTA: Ayúdanos con tu opinión pues estamos explorando esta opción para incorporarla pronto en nuestro sitio y así satisfacer las solicitudes de muchas personas que nos lo han pedido.  El servicio sería Opcional y tendría un costo económico para el patrón impreso y se le adiciona el costo del servicio de mensajería expresa a la puerta de su hogar o negocio.
Sewing Patterns on demmand


Escríbenos tus ideas y preguntas. Con gusto te responderemos;

pero primero te invitamos a que te Registres en nuestra Lista de Correos, y así tendrás respuesta prioritaria. Si no te registras, también obtendrás respuesta pero siguiendo el turno de llegada de la gran cantidad de correos que a diario recibimos.

.

__________________________________________________________________

Regístrate en nuestra Lista de Correos…

…y recibe respuesta inmediata a todas tus preguntas y también

las notificaciones oportunas de cada nuevo Patrón, Libro o

Manual inmediatamente sean publicados.

email
Nombre:

 Te prometemos que tu correo es confidencial. Detestamos el spam,

por eso no lo usamos.

____________________________________________________________________

.

Te invitamos a conocer ¿Quiénes Somos? 

¡Atrévete y Conoces sobre NOSOTROS!

(clic para Entrar)

…y Recomiéndanos con todas tus amistades!

¡Comparte en Tu Muro de Facebook esta información!

…así ayudarás a otras personas en su Superación Profesional

.

____________________________________________________________________

.

Si te gustan los Patrones, los Conocimientos y los Libros y Manuales ofrecidos por Modafacil.com, te invitamos a que en esta misma página nos escribas tus comentarios e impresiones y así motivaremos a más personas a que estudien y se profesionalicen en sus talleres de Moda Hecha en Casa.

También te pedimos a que hagas (+) en google.com/+ModafacilDIY y que ingreses a nuestro Facebook.com/Modafacil.diy y hagas clic en Me Gusta.

.

____________________________________________________________________

.



La entrada Chaqueta Formal con Forro hm1318s se publicó en Modafacil.

Fuente: este post proviene de este blog, donde puedes consultar el contenido original.
¿Vulnera este post tus derechos? Pincha aquí.
Creado:
¿Qué te ha parecido esta idea?

Esta idea proviene de:

Y estas son sus últimas ideas publicadas:

¿Cómo tomar las medidas para coser ropa? Aprender a tomar las medidas para coser ropa de mujeres, hombres, niñas y niños . Modafacil.com, para la fabricación de todos los Patrones “Hechos a la Medida” ...

Recomendamos

Relacionado

Patrones Patrones para hombres aprender a cortar y coser ...

Chaqueta Casual con forro Chaqueta Casual con forro (opcional), corta a la cintura y con pretina. Solapa ancha, corta, con botonadura para 3 o 4 botones y bolsillos de ribete en cada lado.  La manga es de dos piezas, larga con abertura en los puños.  Sugerencia: Si se piensa confeccionar esta prenda para invierno, los moldes del forro pueden ser cortados en telas gruesas tipo imitación borrega, Fl ...

Patrones Patrones para mujeres aprender a cortar y coser ...

Denim Jacket & Skirt Outfit Moldes de Chaqueta y Falda para jovencitas . Chaqueta corta de manga larga de dos piezas con puño, cuello y solapa; el frente y la espalda llevan canesú adornado por pespuntes. El frente lleva botonadura en el centro para tres botones, doble corte en vertical a cada lado y como adorno sobre la costura del corte del canesú al frente, lleva tapas de aletilla simulando que ...

Patrones Patrones para mujeres aprender a cortar y coser ...

Denim Jacket & Skirt Outfit Conjunto de Chaqueta y Falda para jovencitas . Chaqueta corta con manga larga de dos piezas y puños, cuello y solapa corta. El frente lleva cortes en vertical a los lados estilo princesa, botonadura en el centro para cuatro botones y bolsillos de parche con tapas. La espalda lleva canesú y pespuntes de adorno. . Falda cruzada, de talle caído 7 cms debajo de la cintura. ...

Patrones Patrones para hombres Patrones para niños ...

Chaqueta vaquera infantil y juvenil  . La chaqueta vaquera infantil y juvenil es corta a la cintura finalizada en pretina. El frente tiene botonadura para 4 a 5 botones con vista doblada integrada al frente.  El frente a cada lado tiene canesú tipo ‘charro’ o vaquero con pico de donde nace un corte vertical sobre cada frente y sobre cada corte van integrados sendos bolsillos sobre las costuras de ...

Patrones Patrones para hombres Patrones para niños ...

Chaqueta casual infantil y juvenil  . La chaqueta casual infantil y juvenil es corta a la cintura finalizada en pretina. Lleva solapa ancha, corta, con botonadura para 3 o 4 botones y bolsillos parche internos cosidos al revés de la tela mostrando las costura como adorno y con aberturas de ribete en cada bolsillo.  La manga es de dos piezas, larga con abertura en los puños.  Sugerencia: Si se pie ...

Patrones Patrones para mujeres aprender a cortar y coser ...

Conjunto de Chaqueta y Falda para Jovencitas . Chaqueta corta con manga larga, cuello y solapa; el frente y la espalda llevan canesú y simulación de pretina en la línea de dobladillo. El frente lleva cremallera separable de diente grande, cortes en vertical a los lados y bolsillos opcionales con cremallera. Top o Camiseta con manga corta ajustada al cuerpo y escote redondo, la manga y el escote ll ...

Patrones Patrones para niñas Patrones para niños ...

Camisa Vaquera y Pantalón de Mezclilla para niñas y niños La Camisa Vaquera tiene cuello clásico con pie de cuello, manga larga con puños; canesú en el frente. El frente tiene botonadura en el centro para seis botones y bolsillos de parche justo debajo del corte. La espalda lleva un pliegueen el centro y su canesú es doble para darle fino acabado. El Pantalón de corte clásico con pierna y bota rec ...

Patrones Patrones para niñas Patrones para niños ...

Moldes de Chaqueta Casual con Capucha para bebes . Los moldes de chaqueta casual con capucha para bebes, tiene la capucha, los puños, y la pretina en telas diferentes de combinación (opcional), El centro frente sobrepasa lo normal para darle adorno con varios pares de botones o broches de presión al frente. La espalda es de una pieza y las mangas son largas. . PRECAUCIÓN IMPORTANTE: Cuando se tra ...

Patrones Patrones para hombres aprender a cortar y coser ...

Camisa Casual con Charreteras para Jóvenes y Adultos Camisa Casual con charreteras en hombros y bolsillos parche de diseño en frente. De manga corta (Opcional de manga larga), con cuello y pie de cuello. El frente lleva botonadura visible en el centro para siete botones, y en hombros lleva bandas Charreteras con pasadores de adorno tipo cinturón. En el bolsillo izquierdo lleva costura a la mitad c ...

Patrones Patrones para hombres aprender a cortar y coser ...

Camisa Casual Tipo Vaquera para Jóvenes y Adultos . Camisa Casual tipo vaquera, de manga corta con cuello y pie de cuello. El frente lleva botonadura en el centro para siete botones. Tiene canesú y bolsillos de parche con tapas en forma de pico en tela contrastante. La espalda lleva canesú en forma de pico. . Manga Larga Opcional: si deseas el modelo de Camisa Casual tipo vaquero con la manga larg ...